Big Creek Apartments and Townhomes, Rocky Ford, Ohio

Landlord: Joann Terry

Address: 11540 Apache Dr, Parma Heights, OH 44130

Price Size
$940 542

Layout

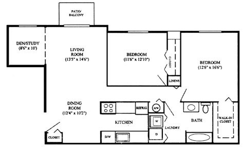
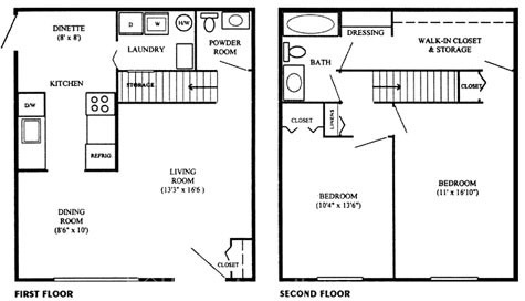
2 beds, 2 bath, 542 sqft

Pets

Price Size Layout Pets Lease Length
$940 542 2 beds, 2 bath, 542 sqft No Data

Unit Features:

  • Access to parkway and bike trail
  • Car care centers
  • Corporate furnished suites
  • Den
  • Den with Window
  • Fireplace
  • Flexible lease terms subject to availability
  • Online rental payment
  • Open Kitchen
  • Picnic area
  • Private Entrance
  • Private Garage Entrance

Rent Facts:

  • Built in 1996
  • 516 Units/3 Stories
Contact Us
Find More