Regency Towers Apartments, St Peters, Pennsylvania

Landlord: Marshall Ortiz

Address: 1001 Easton Rd, Willow Grove, PA 19090

Price Size
$1107 585

Layout

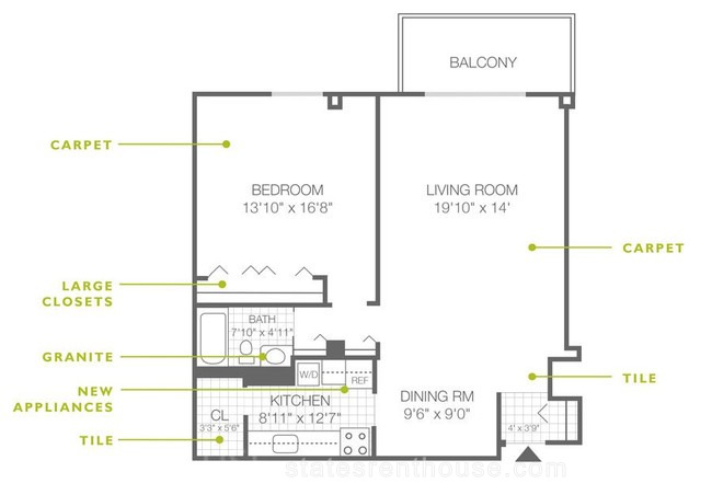
1 bed, 1 bath, 585 sqft

Pets

Price Size Layout Pets Lease Length
$1107 585 1 bed, 1 bath, 585 sqft No Data

Unit Features:

  • Fitness Classes
  • Kids Pool
  • Large Entertaining Space
  • Party Room
  • Resident Trips to Atlantic City
  • Shuttle Service

Rent Facts:

  • Built in 1974
  • 320 Units/9 Stories
  • Furnished
Contact Us
Find More