Village Green of Southgate, Berwick, Michigan

Landlord: Billie Rodriquez

Address: 16700 Quarry Rd, Southgate, MI 48195

Price Size
$650 239

Layout

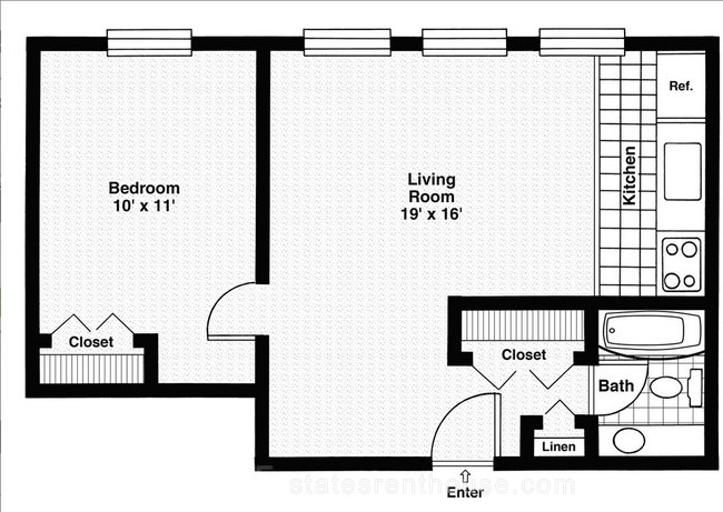
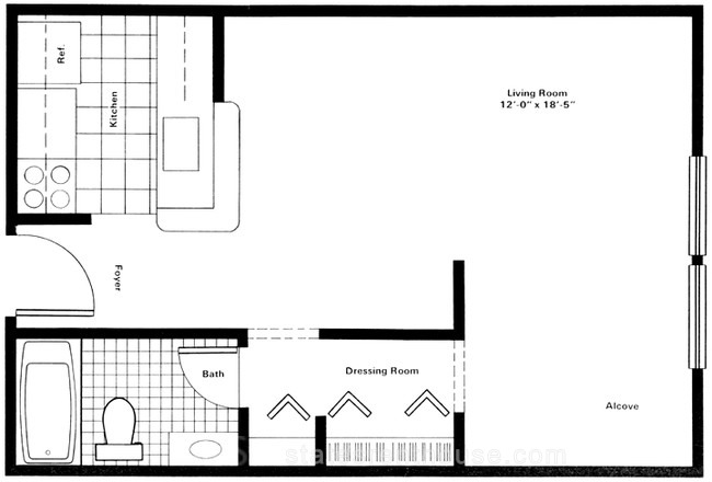
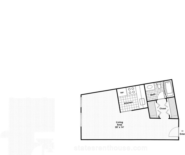
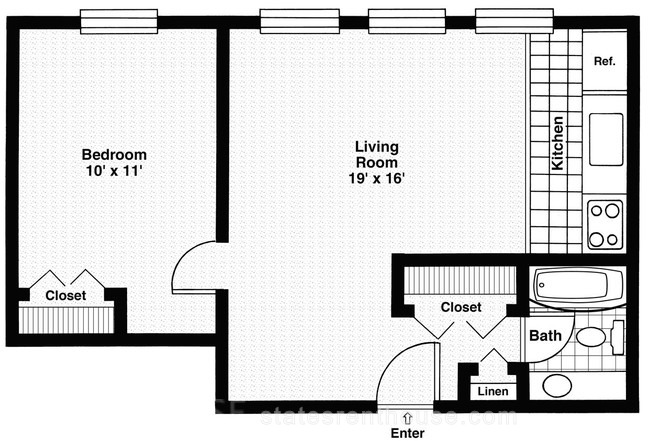
0 bed, 0 bath, 239 sqft

Pets

Price Size Layout Pets Lease Length
$650 239 0 bed, 0 bath, 239 sqft No Data

Unit Features:

  • 24-Hour Emergency Maintenance
  • Hot Tub

Rent Facts:

  • Built in 1975
  • 488 Units/3 Stories
Contact Us
Find More