Breezewood Park, Washinton, Wisconsin

Landlord: Terrance Parker

Address: 1415 Tullar Rd, Neenah, WI 54956

Price Size
$765 273

Layout

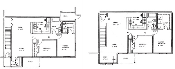
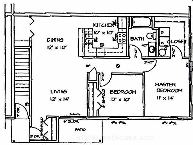
2 beds, 2 bath, 273 sqft

Pets

Price Size Layout Pets Lease Length
$765 273 2 beds, 2 bath, 273 sqft No Data

Unit Features:

  • Heat type is hot water

Rent Facts:

  • Built in 2002
  • 192 Units/2 Stories
Contact Us
Find More