Eagles Landing of Washington, Washington, Michigan

Landlord: Jeremiah Hale

Address: 8204 Washington Blvd, Washington, MI 48094

Price Size
$825 303

Layout

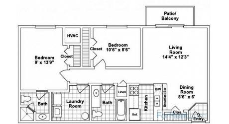
1 bed, 1 bath, 303 sqft

Pets

Price Size Layout Pets Lease Length
$825 303 1 bed, 1 bath, 303 sqft No Data

Unit Features:

  • 24-Hour Emergency Maintenance
  • Balcony or Patio
  • Brand New Clubhouse, Fitness Ctr and Community Ctr
  • Large Storage Areas
  • Minutes From 3 Golf Courses, M-53 & Lakeside Mall
  • Pet Friendly
  • Phase I and II units available!
  • We will receive your Package Deliveries

Rent Facts:

  • Built in 1971
  • 168 Units/2 Stories
Contact Us
Find More